Property
Beds
3
Full Baths
3
1/2 Baths
None
Year Built
2017
Sq.Footage
3,965
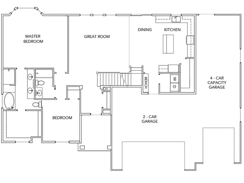
**PRICE IMPROVEMENT!!** Very welcoming and inviting home in a great neighborhood with 3 Bedrooms, 1 Den/Office and 3 Full Bathrooms. The Den/Office could easily be converted to an additional bedroom for a total of 4 finished bedrooms with room to grow in the basement. Prime location near the new West Davis Corridor (3 minutes to the entry) and the new Syracuse Temple. New Costco being built .5 miles away. South facing home. Numerous upgrades throughout. Black Stainless Steel appliance package. New Water Heater and Refrigerator purchased and installed this spring. Granite counter tops. Spacious well-appointed kitchen. Open concept layout with a bonus Loft area overlooking the great room and kitchen. Vaulted ceilings. Upgraded wood grain tile throughout. Upgraded carpet and pad throughout. 4 Car garage. Partially finished basement with 2 bedrooms and a full bathroom finished and an unfinished area for a Rec/Family room and another bedroom as well. Large gun safe in the basement is included. Plantation Shutters throughout. Fully finished landscaping with auto sprinklers that can be controlled through an app. RV parking on west side of home that is 70+ feet long. Covered back patio area as well as covered front porch. Trimlight permanent holiday lighting installed. Trex decking on the back porch and stairs in the garage. Lifetime shed on the back patio is included. This is the Alexander Plan built by CastleCreek. Square footage figures were obtained from builder plans and county records, buyer is responsible to verify all measurements.
Features & Amenities
Interior
-
Other Interior Features
Walk-In Closet(s), Vaulted Ceiling(s), Granite Counters, Master Downstairs
-
Total Bedrooms
3
-
Bathrooms
3
-
Basement YN
YES
-
Cooling YN
YES
-
Cooling
Ceiling Fan(s), Central Air
-
Fireplace YN
YES
-
Heating YN
YES
-
Heating
Forced Air
-
Main Level Bedrooms
1
-
Pet friendly
N/A
Exterior
-
Garage
Yes
-
Garage spaces
4
-
Construction Materials
Asphalt, Stone, Stucco
-
Other Exterior Features
Awning(s), Lighting
-
Parking
RV Access/Parking, Attached
-
Patio and Porch Features
Deck, Covered, Porch
-
Pool
No
-
View
Mountain(s)
Area & Lot
-
Lot Size(acres)
0.24
-
Property Type
Residential
-
Property Sub Type
Single Family Residence
-
Architectural Style
Rambler/Ranch
Price
-
Sales Price
$799,900
-
Tax Amount
3933.0
-
Zoning
R-1
-
Sq. Footage
3, 965
-
Price/SqFt
$201
HOA
-
Association
NO
School District
-
Elementary School
Davis
-
Middle School
Syracuse
-
High School
Syracuse
Property Features
-
Stories
3
-
Accessibility Features
Accessible Doors
-
Senior Community YN
NO
Schedule a Showing
Showing scheduled successfully.
Mortgage calculator
Estimate your monthly mortgage payment, including the principal and interest, property taxes, and HOA. Adjust the values to generate a more accurate rate.
Your payment
Principal and Interest:
$
Property taxes:
$
HOA fees:
$
Total loan payment:
$
Total interest amount:
$
Location
County
Davis
Elementary School
Davis
Middle School
Syracuse
High School
Syracuse
Listing Courtesy of Morgan Nielsen , KW Ascend Keller Williams Realty
RealHub Information is provided exclusively for consumers' personal, non-commercial use, and it may not be used for any purpose other than to identify prospective properties consumers may be interested in purchasing. All information deemed reliable but not guaranteed and should be independently verified. All properties are subject to prior sale, change or withdrawal. RealHub website owner shall not be responsible for any typographical errors, misinformation, misprints and shall be held totally harmless.

Principal Broker
EugenePontecorvo
Call Eugene today to schedule a private showing.

* Listings on this website come from the FMLS IDX Compilation and may be held by brokerage firms other than the owner of this website. The listing brokerage is identified in any listing details. Information is deemed reliable but is not guaranteed. If you believe any FMLS listing contains material that infringes your copyrighted work please click here to review our DMCA policy and learn how to submit a takedown request.© 2024 FMLS.
