Property
Beds
None
Full Baths
None
1/2 Baths
None
Year Built
None
Lot size
1.03 acres
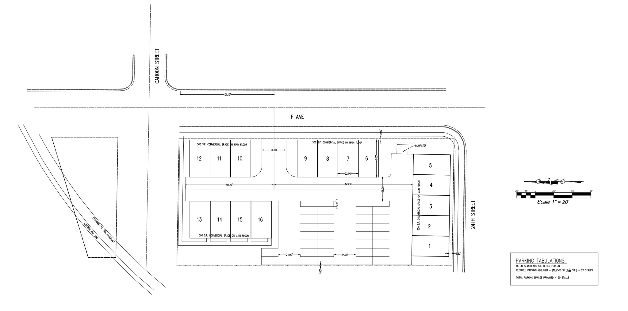
*Big Price Drop* 24th Street Investor/Builder/Developer Opportunity Rental Home + 1.03 Acres Motivated seller, priced for quick sale. Property Details: 1.03-acre lot with single-family home (vacant, proven rental history). Rezone approved by planning commission for 16 mixed-use townhomes (~1,700 sq. ft. residential + 500 sq. ft. commercial, each with 2-car garages). Potential for Phase 2 expansion with additional acreage via vacated city road. Comparable sold new built townhomes are between $475K-$525K. Land value if fully entitled would be $1,100,000. Selling at rezone with plenty of meat on the bone for a quick exit and lots of upside for the new owner. Opportunity: Prime location near new upcoming I-15 interchange, Weber State University, and downtown Ogden. Ogden City redevelopment driving demand for housing and mixed-use projects. Immediate options to lease home for income or use during entitlement/build-out. Not your typical rezone. Planning commission approvals secured include: rezone, development agreement, and code amendment. Ideal for 1031 exchange buyer with immediate utility and strong future upside. Amazing opportunity for an investor, developer, or builder. Buy now, cashflow, build next, cash out later with multiple exit strategies. Full project data room available upon request. All parcel's included in the sale are: 140200004, 1410200002, 140200001, 14020003 Square footage figures are provided as a courtesy estimate only and were obtained from County Assessor. Buyer is advised to obtain an independent measurement.
Features & Amenities
Interior
-
Total Bedrooms
N/A
-
Bathrooms
N/A
-
Cooling YN
NO
-
Cooling
None
-
Fireplace YN
NO
-
Heating YN
NO
-
Heating
None
-
Pet friendly
N/A
Exterior
-
Garage
No
-
Pool
No
-
View
Mountain(s)
Area & Lot
-
Lot Features
Corner Lot, Level
-
Lot Size(acres)
1.03
-
Property Type
Land
Price
-
Sales Price
$750,000
-
Tax Amount
3000.0
-
Zoning
R15 MU
-
Sq. Footage
N/A
-
Price/SqFt
N/A
HOA
-
Association
NO
School District
-
Elementary School
Ogden
-
Middle School
Mound Fort
-
High School
Ben Lomond
Property Features
-
Senior Community YN
NO
Schedule a Showing
Showing scheduled successfully.
Mortgage calculator
Estimate your monthly mortgage payment, including the principal and interest, property taxes, and HOA. Adjust the values to generate a more accurate rate.
Your payment
Principal and Interest:
$
Property taxes:
$
HOA fees:
$
Total loan payment:
$
Total interest amount:
$
Location
County
Weber
Elementary School
Ogden
Middle School
Mound Fort
High School
Ben Lomond
Listing Courtesy of Luke Kennard , Equity Real Estate (Premier Elite)
RealHub Information is provided exclusively for consumers' personal, non-commercial use, and it may not be used for any purpose other than to identify prospective properties consumers may be interested in purchasing. All information deemed reliable but not guaranteed and should be independently verified. All properties are subject to prior sale, change or withdrawal. RealHub website owner shall not be responsible for any typographical errors, misinformation, misprints and shall be held totally harmless.

Principal Broker
EugenePontecorvo
Call Eugene today to schedule a private showing.

* Listings on this website come from the FMLS IDX Compilation and may be held by brokerage firms other than the owner of this website. The listing brokerage is identified in any listing details. Information is deemed reliable but is not guaranteed. If you believe any FMLS listing contains material that infringes your copyrighted work please click here to review our DMCA policy and learn how to submit a takedown request.© 2024 FMLS.
