Stories: 2
1950 S 200 W E32
Bountiful , UT 84010
MLS#: 2108099
$419,800

Property
Beds
3
Full Baths
2
1/2 Baths
1
3/4 Baths
1
Year Built
1975
Sq.Footage
2,334
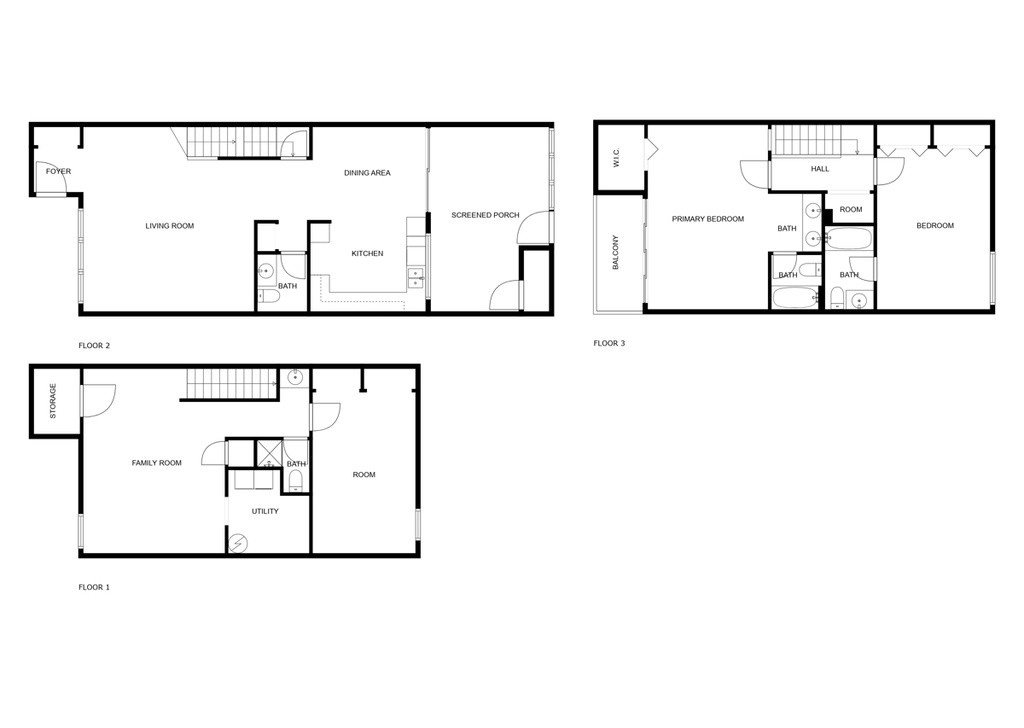
Welcome to this beautifully updated and spacious townhome/condo offering 2,334 square feet of refined living space. Every detail has been thoughtfully upgraded from new flooring, trim, and paint to energy-efficient lighting and luxury finishes creating a home that blends comfort, style, and functionality. Step into a bright, open-concept living area featuring recessed lighting and abundant natural light. The seamless flow from the living room to the dining area and gourmet kitchen makes this home ideal for both everyday living and entertaining. The gourmet kitchen is a true showstopper, boasting custom white cabinetry, elegant gold hardware, quartz countertops, and a full-wall marble backsplash. Updated stainless steel appliances, undermount stainless steel sink, and modern fixtures complete the space with both beauty and practicality. This home offers two spacious master suites, each with new vanities, sleek tile work, and designer finishes, one even includes a private terrace. An additional bedroom and bathroom, along with a second living area, are located in the fully finished basement, offering flexibility for guests, a home office, or additional family space. Enjoy outdoor living on the secluded back patio, perfect for relaxing or entertaining after a swim in the community pool. Additional highlights include ample storage throughout and a prime location just 15 minutes from Salt Lake City International Airport and downtown SLC. Don't miss this rare opportunity to own a turnkey home in one of Bountiful's most desirable areas. Buyer to verify all.
Features & Amenities
Interior
-
Total Bedrooms
3
-
Bathrooms
2
-
1/2 Bathrooms
1
-
3/4 Bathrooms
1
-
Basement YN
YES
-
Cooling YN
YES
-
Cooling
Central Air
-
Fireplace YN
NO
-
Heating YN
YES
-
Heating
Forced Air
-
Pet friendly
Yes
Exterior
-
Garage
No
-
Construction Materials
Brick, Aluminum Siding
-
Other Exterior Features
Balcony, Lighting
-
Parking
Covered
-
Patio and Porch Features
Covered, Screened
-
Pool
No
-
View
Mountain(s)
Area & Lot
-
Lot Size(acres)
0.01
-
Property Type
Residential
-
Property Sub Type
Townhouse
-
Architectural Style
Stories: 2
Price
-
Sales Price
$419,800
-
Tax Amount
1879.0
-
Zoning
RM-19
-
Sq. Footage
2, 334
-
Price/SqFt
$179
HOA
-
Association
YES
-
Association Fee
$355
-
Association Fee Frequency
Monthly
-
Association Fee Includes
N/A
School District
-
Elementary School
Davis
-
Middle School
South Davis
-
High School
Woods Cross
Property Features
-
Stories
3
-
Accessibility Features
Accessible Entrance
-
Association Amenities
Clubhouse, Insurance, Maintenance, Pool, Snow Removal, Trash, Water
-
Senior Community YN
NO
-
Sewer
Public Sewer
Schedule a Showing
Showing scheduled successfully.
Mortgage calculator
Estimate your monthly mortgage payment, including the principal and interest, property taxes, and HOA. Adjust the values to generate a more accurate rate.
Your payment
Principal and Interest:
$
Property taxes:
$
HOA fees:
$
Total loan payment:
$
Total interest amount:
$
Location
County
Davis
Elementary School
Davis
Middle School
South Davis
High School
Woods Cross
Listing Courtesy of Valeri D Simpson , Berkshire Hathaway HomeServices Elite Real Estate
RealHub Information is provided exclusively for consumers' personal, non-commercial use, and it may not be used for any purpose other than to identify prospective properties consumers may be interested in purchasing. All information deemed reliable but not guaranteed and should be independently verified. All properties are subject to prior sale, change or withdrawal. RealHub website owner shall not be responsible for any typographical errors, misinformation, misprints and shall be held totally harmless.

Principal Broker
EugenePontecorvo
Call Eugene today to schedule a private showing.

* Listings on this website come from the FMLS IDX Compilation and may be held by brokerage firms other than the owner of this website. The listing brokerage is identified in any listing details. Information is deemed reliable but is not guaranteed. If you believe any FMLS listing contains material that infringes your copyrighted work please click here to review our DMCA policy and learn how to submit a takedown request.© 2024 FMLS.
