Property
Beds
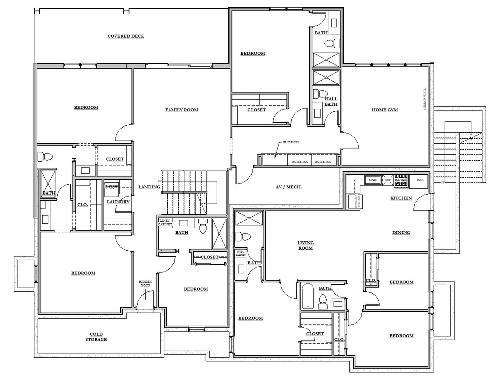
8
Full Baths
2
1/2 Baths
1
3/4 Baths
6
Year Built
2026
Sq.Footage
8,545
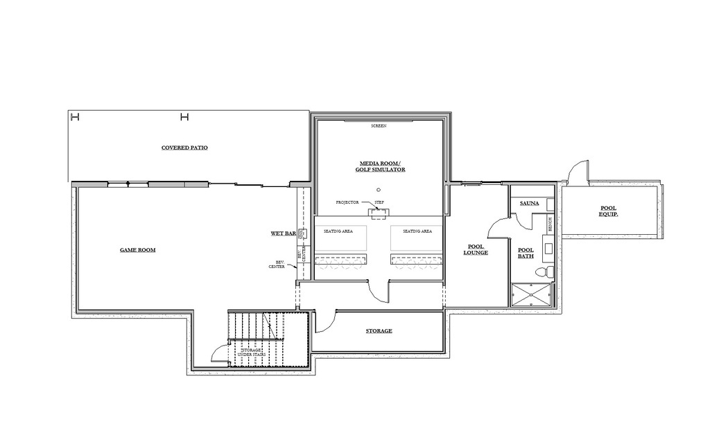
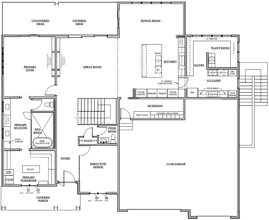
Experience premium living in this mountain modern style custom home designed for entertaining excellence. This luxurious whole health home features a private steam bath with cold plunge, sauna, swimming pool, above ground hot tub, gym, golf simulator/home theater. The kitchen features a fully functioning scullery and interior herb gardening space. This mountain retreat in the foothills of Herriman offers seclusion from busy traffic with the availability of nearby newly constructed shopping amenities minutes away. Many options are still available to choose from the builder. Square footage figures are provided as a courtesy estimate only and were obtained from building plans. Buyer is advised to obtain an independent measurement.
Features & Amenities
Interior
-
Other Interior Features
Wet Bar, Walk-In Closet(s), Vaulted Ceiling(s), Granite Counters, Master Downstairs
-
Total Bedrooms
8
-
Bathrooms
2
-
1/2 Bathrooms
1
-
3/4 Bathrooms
6
-
Basement YN
YES
-
Cooling YN
YES
-
Cooling
Ceiling Fan(s), Central Air, Heat Pump
-
Fireplace YN
YES
-
Heating YN
YES
-
Heating
Fireplace Insert, Central, Natural Gas, Forced Air, Heat Pump
-
Main Level Bedrooms
1
-
Pet friendly
N/A
Exterior
-
Garage
Yes
-
Garage spaces
4
-
Construction Materials
Cedar, Stone, Stucco, Cement Siding, Metal Siding
-
Other Exterior Features
Gas Grill, Balcony
-
Parking
RV Access/Parking, Attached
-
Patio and Porch Features
Deck, Covered, Patio, Porch
-
Pool
Yes
-
Pool Features
Gunite, Heated, In Ground, Private
-
View
Mountain(s), Valley
Area & Lot
-
Lot Size(acres)
0.26
-
Property Type
Residential
-
Property Sub Type
Single Family Residence
-
Architectural Style
Rambler/Ranch
Price
-
Sales Price
$2,499,000
-
Tax Amount
16000.0
-
Zoning
A-1-10
-
Sq. Footage
8, 545
-
Price/SqFt
$292
HOA
-
Association
NO
School District
-
Elementary School
Jordan
-
Middle School
N/A
-
High School
N/A
Property Features
-
Stories
3
-
Senior Community YN
NO
-
Sewer
Public Sewer
Schedule a Showing
Showing scheduled successfully.
Mortgage calculator
Estimate your monthly mortgage payment, including the principal and interest, property taxes, and HOA. Adjust the values to generate a more accurate rate.
Your payment
Principal and Interest:
$
Property taxes:
$
HOA fees:
$
Total loan payment:
$
Total interest amount:
$
Location
County
Salt Lake
Elementary School
Jordan
Middle School
High School
Listing Courtesy of Casey N Bowen , KW Westfield (Cedar Valley)
RealHub Information is provided exclusively for consumers' personal, non-commercial use, and it may not be used for any purpose other than to identify prospective properties consumers may be interested in purchasing. All information deemed reliable but not guaranteed and should be independently verified. All properties are subject to prior sale, change or withdrawal. RealHub website owner shall not be responsible for any typographical errors, misinformation, misprints and shall be held totally harmless.

Principal Broker
EugenePontecorvo
Call Eugene today to schedule a private showing.

* Listings on this website come from the FMLS IDX Compilation and may be held by brokerage firms other than the owner of this website. The listing brokerage is identified in any listing details. Information is deemed reliable but is not guaranteed. If you believe any FMLS listing contains material that infringes your copyrighted work please click here to review our DMCA policy and learn how to submit a takedown request.© 2024 FMLS.
