Property
Beds
4
Full Baths
3
1/2 Baths
1
Year Built
2026
Sq.Footage
3,543
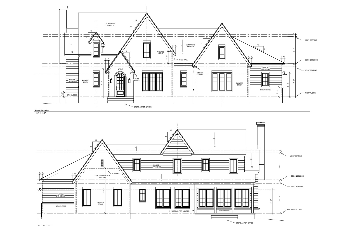
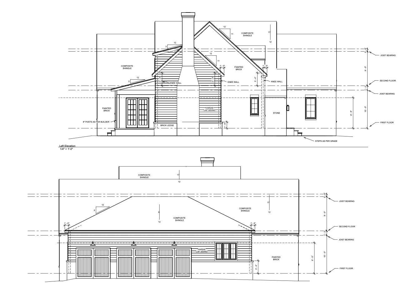
Summit Home Collective brings this new (to be built) home offering detailed custom design and high-end finishes. This stunning plan showcases timeless European-inspired architecture. Thoughtfully designed at 3,543 sq ft this home features an open-concept main level with soaring 15-foot vaulted ceilings, exposed decorative beams, and a gourmet kitchen flowing seamlessly into the dining and living areas. The luxurious master suite is conveniently located on the main floor with spa-like ensuite and walk-in closet, plus a dedicated office, mudroom, and laundry room. The second floor offers two additional bedrooms, full bathroom, and bonus space for future expansion. Architectural details include multiple gabled rooflines, arched entry elements, and a welcoming covered front porch. This custom build opportunity allows buyers to select premium finishes and personalize details with Summit Home Collective's commitment to quality craftsmanship and comprehensive architectural plans for a seamless building process.
Features & Amenities
Interior
-
Other Interior Features
Vaulted Ceiling(s), Master Downstairs
-
Total Bedrooms
4
-
Bathrooms
3
-
1/2 Bathrooms
1
-
Basement YN
NO
-
Cooling YN
YES
-
Cooling
Central Air
-
Fireplace YN
YES
-
Heating YN
YES
-
Heating
Forced Air, Radiant Floor
-
Main Level Bedrooms
1
-
Pet friendly
N/A
Exterior
-
Garage
Yes
-
Garage spaces
3
-
Construction Materials
Stone, Cement Siding
-
Parking
Attached
-
Pool
No
-
View
Mountain(s), Valley
Area & Lot
-
Lot Size(acres)
0.45
-
Property Type
Residential
-
Property Sub Type
Single Family Residence
-
Architectural Style
Stories: 2
Price
-
Sales Price
$2,100,000
-
Tax Amount
1917.0
-
Sq. Footage
3, 543
-
Price/SqFt
$592
HOA
-
Association
YES
-
Association Fee
$250
-
Association Fee Frequency
Monthly
-
Association Fee Includes
N/A
School District
-
Elementary School
South Summit
-
Middle School
South Summit
-
High School
South Summit
Property Features
-
Stories
2
-
Senior Community YN
NO
-
Sewer
Public Sewer
Schedule a Showing
Showing scheduled successfully.
Mortgage calculator
Estimate your monthly mortgage payment, including the principal and interest, property taxes, and HOA. Adjust the values to generate a more accurate rate.
Your payment
Principal and Interest:
$
Property taxes:
$
HOA fees:
$
Total loan payment:
$
Total interest amount:
$
Location
County
Summit
Elementary School
South Summit
Middle School
South Summit
High School
South Summit
Listing Courtesy of Austin Smoot , Engel & Volkers Park City
RealHub Information is provided exclusively for consumers' personal, non-commercial use, and it may not be used for any purpose other than to identify prospective properties consumers may be interested in purchasing. All information deemed reliable but not guaranteed and should be independently verified. All properties are subject to prior sale, change or withdrawal. RealHub website owner shall not be responsible for any typographical errors, misinformation, misprints and shall be held totally harmless.

Principal Broker
EugenePontecorvo
Call Eugene today to schedule a private showing.

* Listings on this website come from the FMLS IDX Compilation and may be held by brokerage firms other than the owner of this website. The listing brokerage is identified in any listing details. Information is deemed reliable but is not guaranteed. If you believe any FMLS listing contains material that infringes your copyrighted work please click here to review our DMCA policy and learn how to submit a takedown request.© 2024 FMLS.
