Property
Beds
4
Full Baths
2
1/2 Baths
1
Year Built
2025
Sq.Footage
2,148
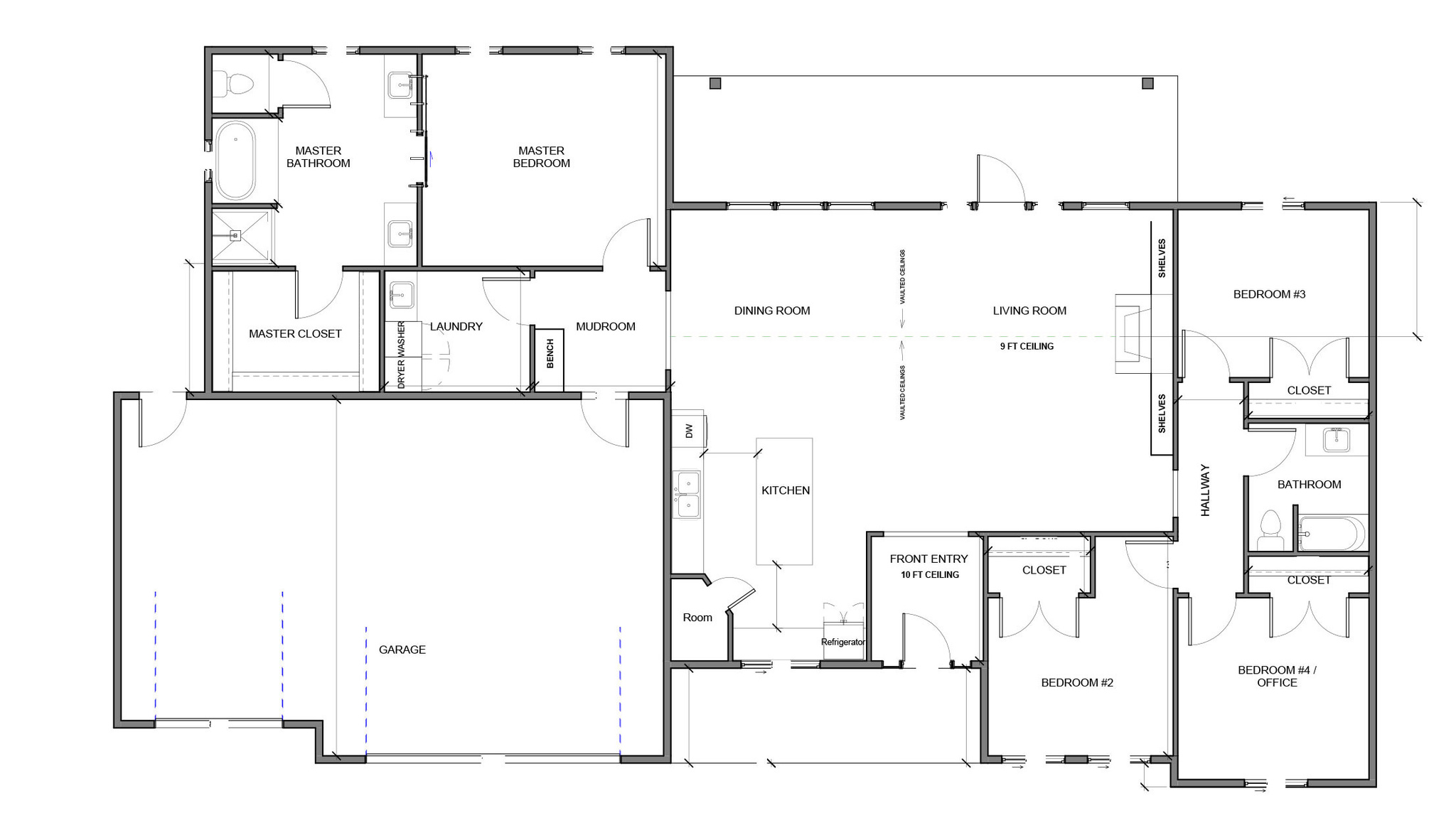
New Construction - Custom Options Available | USDA Financing Eligible This brand-new 4-bedroom, 2.5-bath home in Enoch, Utah blends flexibility, quality, and value. Offered at $529,900, this home includes a $12,000 block wall allowance already factored into the price, buyers may choose to apply this value toward other upgrades if preferred. The builder is open to making personalized modifications, which is a rare find in today's market. USDA Eligible-0% Down Financing Area ( Buyer to Verify) Square footage figures are provided as a courtesy estimate only and were obtained from Builder . Buyer is advised to obtain an independent measurement.
Features & Amenities
Interior
-
Other Interior Features
Walk-In Closet(s), Master Downstairs
-
Total Bedrooms
4
-
Bathrooms
2
-
1/2 Bathrooms
1
-
Cooling YN
YES
-
Cooling
Ceiling Fan(s), Central Air
-
Fireplace YN
YES
-
Heating YN
YES
-
Heating
Forced Air
-
Main Level Bedrooms
4
-
Pet friendly
N/A
Exterior
-
Garage
Yes
-
Garage spaces
3
-
Construction Materials
Stucco
-
Parking
RV Access/Parking, Attached
-
Patio and Porch Features
Covered
-
Pool
No
-
View
Mountain(s)
Area & Lot
-
Lot Size(acres)
0.28
-
Property Type
Residential
-
Property Sub Type
Single Family Residence
-
Architectural Style
Rambler/Ranch
Price
-
Sales Price
$529,000
-
Sq. Footage
2, 148
-
Price/SqFt
$246
HOA
-
Association
NO
School District
-
Elementary School
Iron
-
Middle School
Cedar Middle School
-
High School
Cedar
Property Features
-
Stories
1
-
Accessibility Features
Accessible Hallway(s), Accessible Entrance, Customized Wheelchair Accessible
-
Senior Community YN
NO
Schedule a Showing
Showing scheduled successfully.
Mortgage calculator
Estimate your monthly mortgage payment, including the principal and interest, property taxes, and HOA. Adjust the values to generate a more accurate rate.
Your payment
Principal and Interest:
$
Property taxes:
$
HOA fees:
$
Total loan payment:
$
Total interest amount:
$
Location
County
Iron
Elementary School
Iron
Middle School
Cedar Middle School
High School
Cedar
Listing Courtesy of Troy Moultrie , Real Broker, LLC
RealHub Information is provided exclusively for consumers' personal, non-commercial use, and it may not be used for any purpose other than to identify prospective properties consumers may be interested in purchasing. All information deemed reliable but not guaranteed and should be independently verified. All properties are subject to prior sale, change or withdrawal. RealHub website owner shall not be responsible for any typographical errors, misinformation, misprints and shall be held totally harmless.

Principal Broker
EugenePontecorvo
Call Eugene today to schedule a private showing.

* Listings on this website come from the FMLS IDX Compilation and may be held by brokerage firms other than the owner of this website. The listing brokerage is identified in any listing details. Information is deemed reliable but is not guaranteed. If you believe any FMLS listing contains material that infringes your copyrighted work please click here to review our DMCA policy and learn how to submit a takedown request.© 2024 FMLS.
