Property
Beds
4
Full Baths
1
1/2 Baths
2
3/4 Baths
3
Year Built
2024
Sq.Footage
5,450
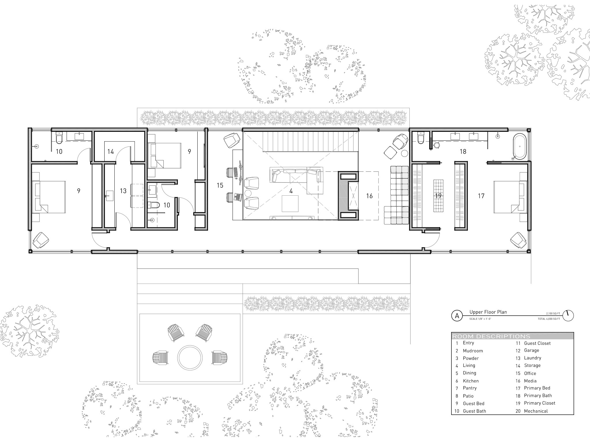
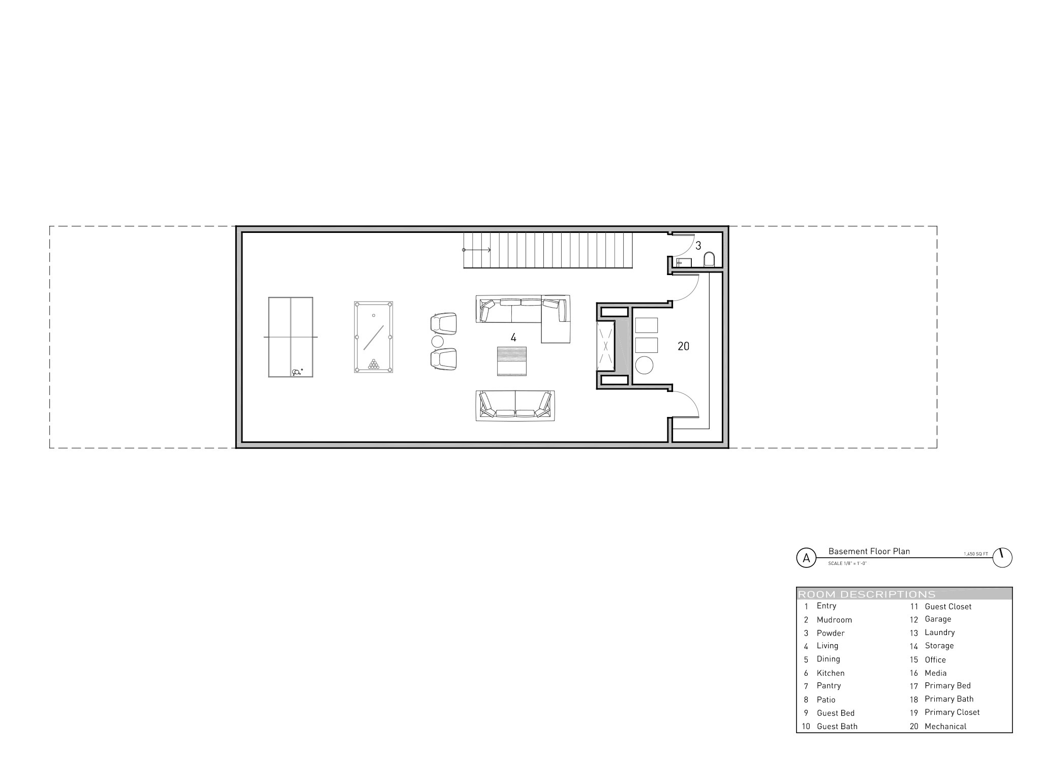
Are you seeking a fresh-looking dwelling that's not your typical mountain retreat? Check out this to-be-built 5450 sqft modern box. 4349 N Snowflake Circle is ideally located at the bottom of Powder Mountain Rd and is several minutes from PowMow in Eden, Utah. This wintertime paradise has three ski resorts, cross-country skiing, and snowmobiling nearby. Summer fun includes mountain biking, golf, hiking, water sports, and motorsports. The southern exposure allows for incredible views of Nordic Valley, Pineview Reservoir, Snowbasin. and Ben Lomond Peak. The incredibly functional open layout will be perfect for larger gatherings, but affords plenty of private space. The team at Imbue Design, a modern specialty architecture firm, came up with this concept after visiting the site. The lot slopes to the South which allows for the best lighting, natural solar gain, and incredible visuals of the valley below. The main floor, 1900 sqft in total, has a generous, open great room space with floor-to-ceiling glass showcasing crazy views of Pineview Reservoir and surrounding mountains. The gourmet kitchen is designed to have easy interaction with guests, and has seamless access to the party patio for BBQ festivities. There is a guest suite that is perfect for stairless living. The heated garage is perfect for the big snow days that will be coming, and the convenience of a mudroom and powder room checks all the boxes. The second level, 2100 sqft, has 3 en suite spaces, the primary is set away and has been designed to perfection with all the appointments you'd expect. In the center, you'll be able to enjoy a lounge, media, and office trifecta. The other 2 en suite bedrooms are on the far side and are perfect for kids or guests. The basement, 1450 sqft, is a gamer's paradise with plenty of room for billiard and ping pong tables, or whatever your crew desires. There will also be a theater with surround sound. The interior and exterior fixtures, appliances, and materials will be of the highest quality, constructed by Benchmark Modern, the premier modern builder in the state. Benchmark has built many of the Powder Mountain retreats at the Summit and Snowflake will have very similar finishes. The highlighted lot lines are for conceptual purposes only.
Features & Amenities
Interior
-
Other Interior Features
Walk-In Closet(s), Master Downstairs
-
Total Bedrooms
4
-
Bathrooms
1
-
1/2 Bathrooms
2
-
3/4 Bathrooms
3
-
Basement YN
YES
-
Cooling YN
YES
-
Cooling
Heat Pump
-
Fireplace YN
YES
-
Heating YN
YES
-
Heating
Radiant
-
Main Level Bedrooms
1
-
Pet friendly
N/A
Exterior
-
Garage
Yes
-
Garage spaces
2
-
Construction Materials
Metal Siding
-
Parking
RV Access/Parking, Attached
-
Patio and Porch Features
Patio
-
Pool
No
-
View
Lake, Mountain(s), Valley
Area & Lot
-
Lot Features
Cul-De-Sac
-
Lot Size(acres)
1.07
-
Property Type
Residential
-
Property Sub Type
Single Family Residence
Price
-
Sales Price
$2,500,000
-
Tax Amount
1973.0
-
Zoning
SFR
-
Sq. Footage
5, 450
-
Price/SqFt
$458
HOA
-
Association
NO
School District
-
Elementary School
Valley
-
Middle School
Snowcrest
-
High School
Weber
Property Features
-
Stories
3
-
Accessibility Features
Accessible Hallway(s)
-
Senior Community YN
NO
-
Sewer
Public Sewer
Schedule a Showing
Showing scheduled successfully.
Mortgage calculator
Estimate your monthly mortgage payment, including the principal and interest, property taxes, and HOA. Adjust the values to generate a more accurate rate.
Your payment
Principal and Interest:
$
Property taxes:
$
HOA fees:
$
Total loan payment:
$
Total interest amount:
$
Location
County
Weber
Elementary School
Valley
Middle School
Snowcrest
High School
Weber
Listing Courtesy of Steven Brush , Windermere Real Estate
RealHub Information is provided exclusively for consumers' personal, non-commercial use, and it may not be used for any purpose other than to identify prospective properties consumers may be interested in purchasing. All information deemed reliable but not guaranteed and should be independently verified. All properties are subject to prior sale, change or withdrawal. RealHub website owner shall not be responsible for any typographical errors, misinformation, misprints and shall be held totally harmless.

Principal Broker
EugenePontecorvo
Call Eugene today to schedule a private showing.

* Listings on this website come from the FMLS IDX Compilation and may be held by brokerage firms other than the owner of this website. The listing brokerage is identified in any listing details. Information is deemed reliable but is not guaranteed. If you believe any FMLS listing contains material that infringes your copyrighted work please click here to review our DMCA policy and learn how to submit a takedown request.© 2024 FMLS.
