Property
Beds
6
Full Baths
4
1/2 Baths
1
Year Built
2026
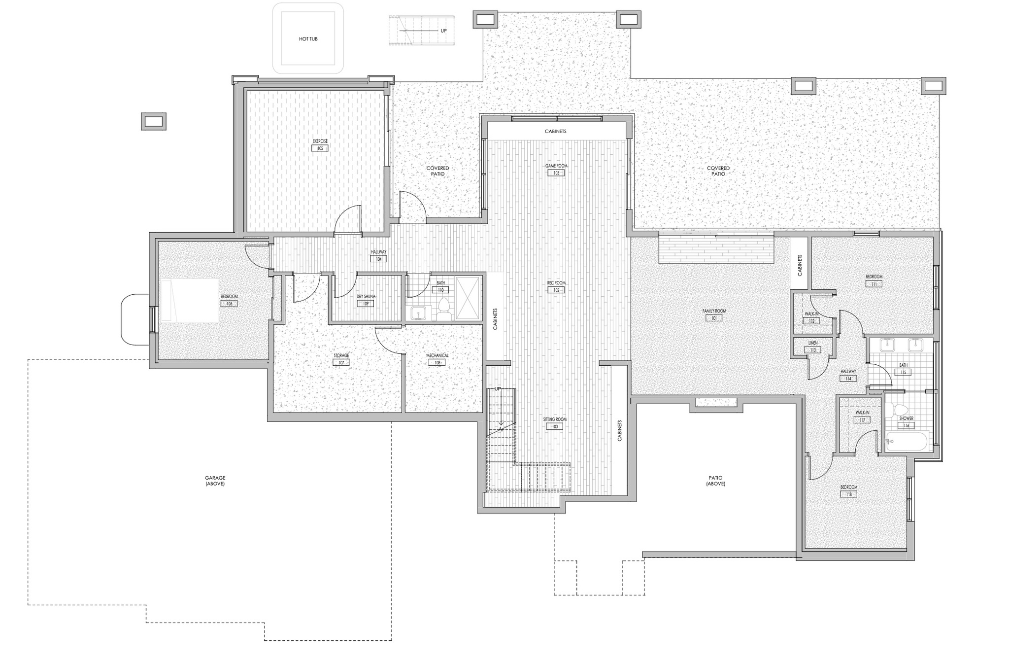
Sq.Footage
5,496
Prime 1-Acre Homesite in the Prestigious Cottages at Hobble Creek Nestled in a tranquil alpine meadow just 12 miles from Springville City Center, this exclusive 1-acre lot offers a rare opportunity to build your dream estate in one of Utah's most scenic and sought-after gated communities-The Cottages at Hobble Creek. Surrounded by breathtaking mountain views and the natural serenity of Hobble Creek Canyon, this property blends the peace of mountain living with the convenience of city access. Whether you envision a full-time residence or a luxury second home, Lot 10 provides the ideal canvas for a life steeped in beauty, privacy, and comfort. To streamline your journey, the seller is including a complete HOA-approved architectural design package-crafted by licensed architects and engineers-tailored specifically for this lot. Also included are professional survey and topography maps, a Record of Survey, and a geotechnical report for foundation and septic design. As well as landscaping including a sports court! Every detail has been thoughtfully prepared, saving you valuable time and investment. Imagine waking each morning to crisp canyon air, panoramic views, and the soft rustle of evergreens. Here, luxury isn't loud-it's peaceful, purposeful, and deeply personal. Secure your place in this extraordinary enclave today.
Features & Amenities
Interior
-
Other Interior Features
Walk-In Closet(s), Vaulted Ceiling(s), Master Downstairs
-
Total Bedrooms
6
-
Bathrooms
4
-
1/2 Bathrooms
1
-
Basement YN
YES
-
Cooling YN
YES
-
Cooling
Central Air
-
Fireplace YN
NO
-
Heating YN
YES
-
Heating
Forced Air
-
Main Level Bedrooms
3
-
Pet friendly
N/A
Exterior
-
Garage
Yes
-
Garage spaces
3
-
Construction Materials
Stone, Other
-
Parking
Attached
-
Patio and Porch Features
Deck, Covered
-
Pool
No
-
View
Mountain(s), Valley
Area & Lot
-
Lot Size(acres)
1.0
-
Property Type
Residential
-
Property Sub Type
Single Family Residence
-
Architectural Style
Rambler/Ranch
Price
-
Sales Price
$1,795,000
-
Tax Amount
2000.0
-
Sq. Footage
5, 496
-
Price/SqFt
$326
HOA
-
Association
YES
-
Association Fee
$152
-
Association Fee Frequency
Monthly
-
Association Fee Includes
N/A
School District
-
Elementary School
Hobble Creek
-
Middle School
Mapleton Jr
-
High School
Springville
Property Features
-
Stories
2
-
Senior Community YN
NO
-
Sewer
Septic Tank
Schedule a Showing
Showing scheduled successfully.
Mortgage calculator
Estimate your monthly mortgage payment, including the principal and interest, property taxes, and HOA. Adjust the values to generate a more accurate rate.
Your payment
Principal and Interest:
$
Property taxes:
$
HOA fees:
$
Total loan payment:
$
Total interest amount:
$
Location
County
Utah
Elementary School
Hobble Creek
Middle School
Mapleton Jr
High School
Springville
Listing Courtesy of Amy Erdmann , KW WESTFIELD
RealHub Information is provided exclusively for consumers' personal, non-commercial use, and it may not be used for any purpose other than to identify prospective properties consumers may be interested in purchasing. All information deemed reliable but not guaranteed and should be independently verified. All properties are subject to prior sale, change or withdrawal. RealHub website owner shall not be responsible for any typographical errors, misinformation, misprints and shall be held totally harmless.

Principal Broker
EugenePontecorvo
Call Eugene today to schedule a private showing.

* Listings on this website come from the FMLS IDX Compilation and may be held by brokerage firms other than the owner of this website. The listing brokerage is identified in any listing details. Information is deemed reliable but is not guaranteed. If you believe any FMLS listing contains material that infringes your copyrighted work please click here to review our DMCA policy and learn how to submit a takedown request.© 2024 FMLS.
